Vente Appartement Angers
118 175 € HAI - 37.38 m2 - 1 Chambre - Réf. FD3854-CABINETTAPISSIER_3854

Vente Appartement
Angers
118 175 € HAI
Prix Honoraires Inclus : 118 175 €
Honoraires : 7,43% TTC*
Prix Honoraires Exclus : 110 000 €
* Les honoraires d'agence seront intégralement à la charge de l'acquéreur
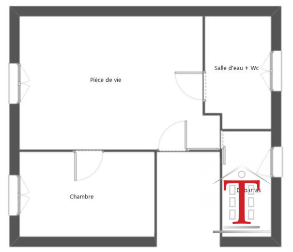
  • 2 Pièces
  • 1 Chambre
  • 37.38 m2

ANGERS T2

ANGERS quartier Victor Hugo a 15mn à pieds du centre ville, charmant T2 au 2ème et dernier étage d'une petite copropriété, traversant et très lumineux, une rénovation énergétique procurera à cet appartement un confort idéal. Passé le porche, vous pourrez ranger votre vélo en toute sécurité.

Honoraires inclus de 7.43% TTC à la charge de l'acquéreur. Prix hors honoraires 110 000 €. Dans une copropriété de 11 lots. Quote-part moyenne du budget prévisionnel 456 €/an. Aucune procédure n'est en cours. Classe énergie G, Classe climat C Logement à consommation énergétique excessive. Montant estimé des dépenses annuelles d'énergie pour un usage standard : entre 1930.00 € et 2640.00 € sur les années 2021, 2022 et 2023 (abonnements compris). Les informations sur les risques auxquels ce bien est exposé sont disponibles sur le site Géorisques : georisques.gouv.fr.

Carte pro. CPI 4901 2018 000 024 506 TGS
AC CPI 4901 2024 000 000 247


Les informations sur les risques auxquels ce bien est exposé sont disponibles sur le site Géorisques : www.georisques.gouv.fr

  • Référence : FD3854-CABINETTAPISSIER_3854
  • Ville : Angers
  • Transaction : Vente
  • Type de bien : Appartement
  • Prix HAI : 118 175 €
  • Syndicat en procédure : NC
  • Copropriété - nombres de lots : 11
  • Charges annuelles : 456
  • Surface : 37,38 m2
  • Etage du bien : 2
  • Nbr de pièces : 2
  • Nbr de chambres : 1
  • Nbr SDB : 1
  • Cuisine : Aménagée
  • Chauffage : électrique
Performance énergétique (en KWh/m2/an)
Dpe
Performance climatique (en Kg éq CO2/m2/an)
Ges
Montant estimé des dépenses annuelles d’énergie pour un usage standard : année de référence 2021 - de 1930€ à 2640€
%
%

Vos mensualités

*apport calculé sur une base de 20%

Informations non contractuelles, fournies à titre indicatif
49 - Maine Et Loire
Montant En % du prix du bien
Emoluments notaire %
Copies & formalités notaire 800 %
Total notaire %
Droits de mutation 5.80%
Publicité foncière 0.10%
Debours 400 %
TVA (sur part notaire) %
Total %
Informations non contractuelles, fournies à titre indicatif
Contactez-nous
* champs obligatoires
CABINET TAPISSIER & ASSOCIES

SYNDIC

1 Avenue de Contades
49000 Angers

02 41 88 14 55
infosyndic@cabinettapissier.fr

GESTION LOCATIVE & LOCATION

1 Avenue de Contades
49000 Angers

02 41 88 69 88
gestion@cabinettapissier.fr

VENTE

27 rue Chevreul
49100 Angers

02 41 88 99 44
contact@cabinettapissier.fr
  • 0
  • 0